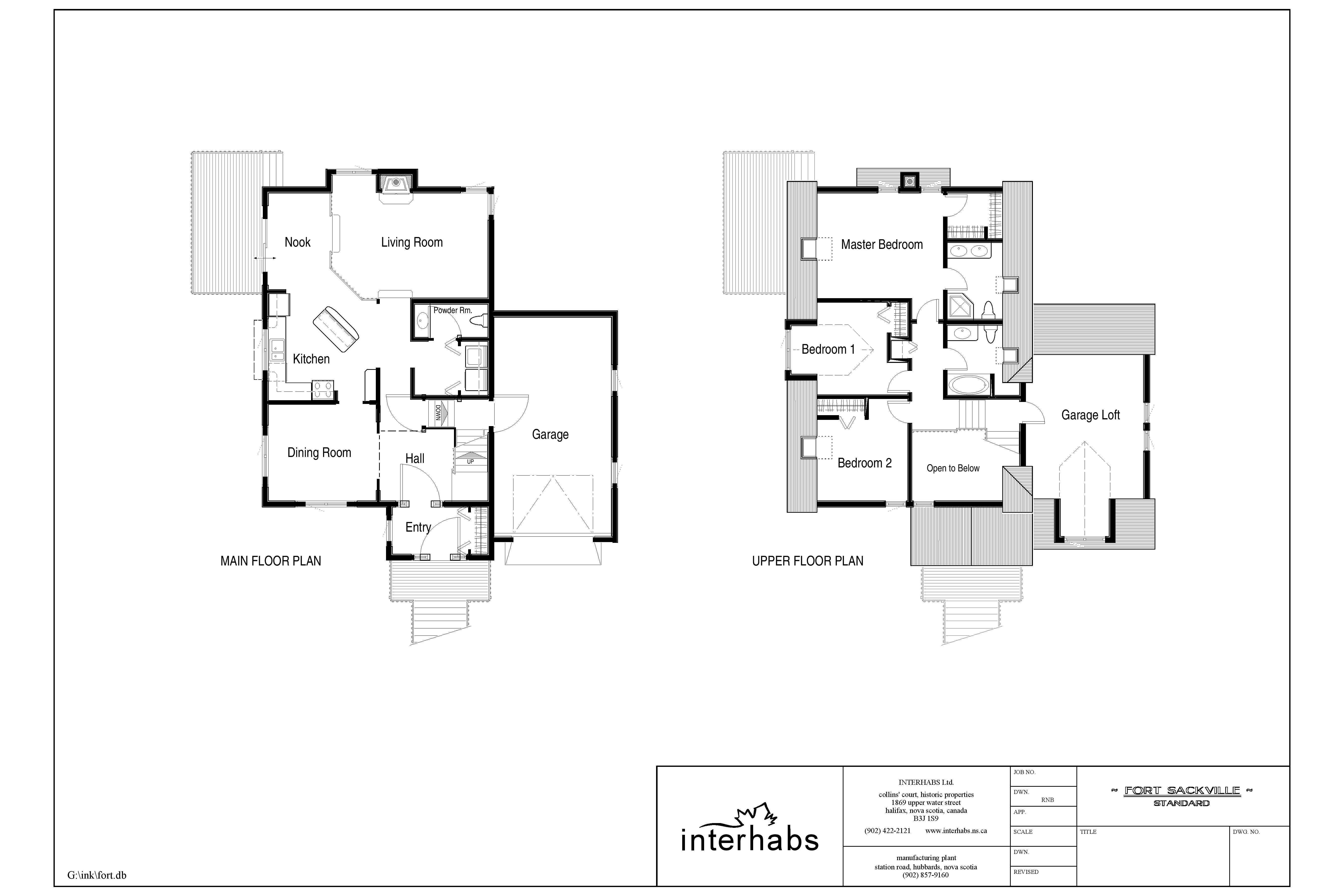
Drawing inspiration from the Cape Cod esthetic, the Fort Sackville is well suited to family living. From the sizeable garage you enter in to a main floor with a powder room, laundry, dining room, living room and kitchen with eat-in nook. The upstairs has a large master bedroom with a generous walk-in closet and en-suite bath. Two more bedrooms, a full bath and access to a garage loft finish off the upper floor.