Interhabs
Menu

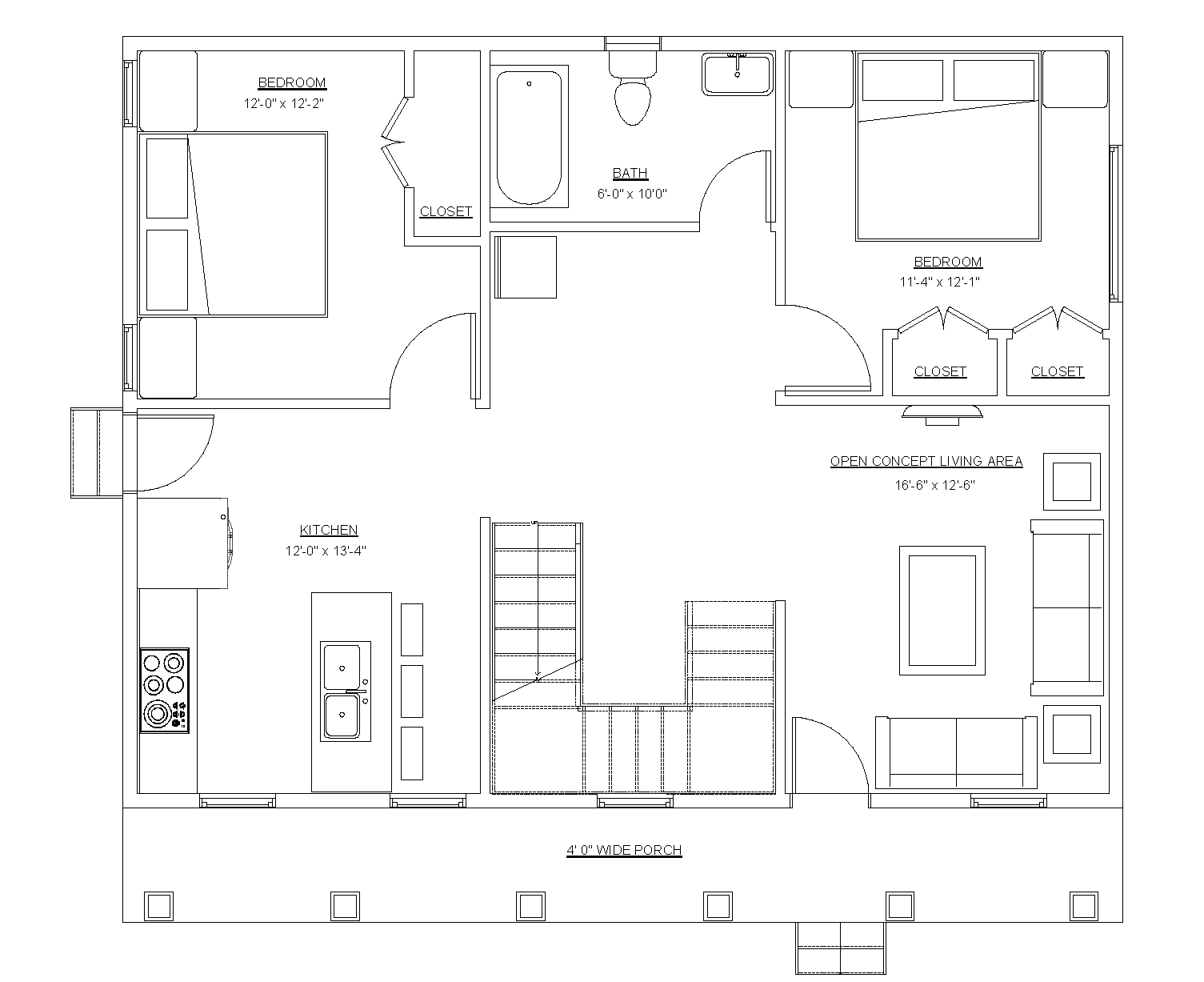
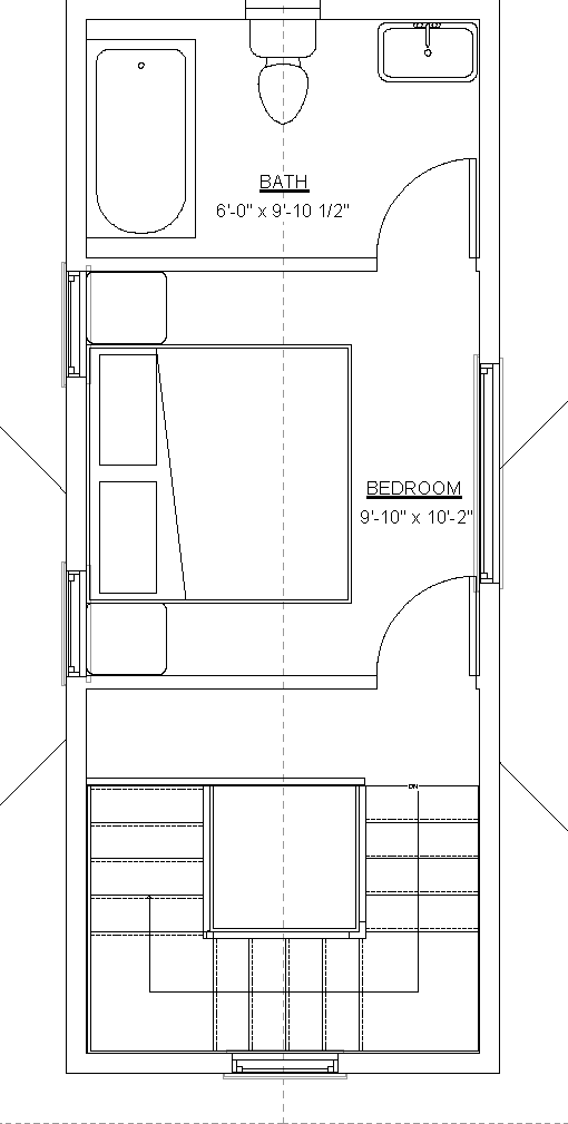
Weymouth

Column

Column

Features:


  • 3 Bedroom

  • 2 Bath

  • 1800 sq ft'




 


Floorplans


https://0901.nccdn.net/4_2/000/000/064/d40/weymouth-floorplan_main.png
https://0901.nccdn.net/4_2/000/000/064/d40/weymouth-floorplan_main.png
https://0901.nccdn.net/4_2/000/000/00d/f43/weymouth-floorplan_upper.png
https://0901.nccdn.net/4_2/000/000/00d/f43/weymouth-floorplan_upper.png
0


Interhabs packages do not include build site preparation, foundations, on-site panel assembly, plumbing, electrical, HRV/HVAC and other mechanical systems, finished flooring, cabinetry, interior fixtures and finishes, or any permits; these aspects of your project are your/your contractor’s responsibility.



| Interhabs | 33 Station Road, Hubbards, NS B0J 1T0 | 902-857-1616 | info@interhabs.ns.ca | Copyright 2024 Interhabs Limited |


close lightbox